Как сделать газогенераторный котел своими руками?
Современный газогенераторный котел — является многофункциональным оборудованием, которое используется для отопления помещений.
Устройство таких котлов — довольно непростое.
К примеру, газогенераторная печь на дровах состоит из камеры предварительной газификации.
Сюда также входит камера сгорания – здесь происходит процесс переработки топлива в тепло.
Из камеры газификации, газы проникают в камеру сгорания - через форсунку, так как работает вентилятор.
Давайте разберемся, как сделать газогенераторный котел своими руками.
Для этого, сперва рассмотрим его устройство, ознакомимся со схемами и решим для себя — не проще ли будет его купить.
Устройство и принцип работы
Газогенераторные котлы делятся на две части.
В одну из них входит камера загрузки – здесь горят дрова, и они пиролизуются, если ощущается недостаток кислорода.
Во вторую – камера сгорания, в ней будут догорать газы, которые выделяются.
Сюда также попадает вторичный воздух и наблюдается минимальный отвод тепла из первой камеры. Данные части являются разделенными колосником, на котором и размещается топливо.
Воздух сверху вниз проходит через древесину.
Самое главное отличие здесь заключается в том, что устройство газогенераторного котла содержит верхнее дутье.
В конструкцию данных топок входит повышенное аэродинамическое сопротивление, работа основывается на принудительной тяге. В некоторых случаях, ее могут делать при помощи дымососа, но не вентилятора.
Такое оборудование, как газогенераторный котел на дровах – пользуется особой популярностью.
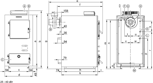
Схемы и чертежи:
В нем происходит термическое разложение древесины: при воздействии внешних факторов происходит разложение на уголь – твердые остатки и газ – летучая часть.
В камере загрузки происходит процесс с наличием высокой температуры и нехватки кислорода.
Газ, который выделяется из древесины, будет проходить через сопло, смешиваться там с вторичным воздухом и сгорать при достижении температуры практически 1200 градусов.
Газы, при прохождении через теплообменник, отдают тепло рабочему телу, а затем выходят через дымоход.
Самое главное отличие твердотопливных газогенераторные котлов от пиролизных состоит в том, что здесь происходит процесс горения, как дров, так и древесного газа, выделяющегося в процессе.
Когда все это сгорает, не происходит образования сажи, а зола остается в мизерном количестве, поэтому агрегат приходится очень редко чистить.
Основное преимущество состоит в том, что котел способен поддерживать очень долгое время заданный температурный режим, в отличие от обыкновенных моделей, потому что у него высокое КПД и увеличенная загрузочная камера.
Можно найти и такие модели, которые способны работать целые сутки только лишь на одной закладке топлива. Они самостоятельно утилизируют отходы и не загрязняют природную среду.
Но пиролизный газогенераторный котел нуждается в электрической энергии, он очень требователен к топливу и отличается большими габаритными размерами.
Делаем своими руками
Все газогенераторные пиролизные твердотопливные котлы очень популярны, потому что стоимость тарифов на природный газ постоянно растет, а топливо всегда является доступным.
Однако, многие решают сэкономить и сделать газогенераторный котел своими руками. Давайте разберемся, что для этого понадобиться.
Фото и схемы:
Все что нужно будет иметь при себе, так это необходимый инструмент и максимум желания.
Прежде, чем начинать работу, вам необходимо будет прочесть статью целиком, чтобы изучить все нюансы, касающиеся особенностей пиролизного котла.
Необходимо заранее все решить и просчитать, какой именно тип горения выбрать: с наличием щелевой горелки, либо на колосниках.
Остальные детали можно будет приобрести в специальном магазине.
Высокая цена газогенераторного котла не всегда дает возможность его купить, а вот собрать его по частям будет намного дешевле.
Для непосредственного изготовления вам нужно:
- Выбрать стальную трубу, толщина которой составляет 4 мм;
- Стальной лист 4 мм;
- Трубы профильного типа;
- Круглый прут, диаметр которого составляет 20 мм;
- Кирпич шамотный;
- Электроды;
- Центробежный вентилятор;
- Шнур асбестовый;
- Гайки и болты;
- Автоматика, чтобы регулировать температуру.
Также, чтобы заниматься проектированием, вам понадобятся чертежи газогенераторного котла. Все это также поможет сделать правильный расчет количества материала.
Вы сможете найти их чуть выше.
Схема определенного котла нужна и для того, чтобы знать месторасположение топки, подачи воды и теплообменника.
Целесообразный вариант – это использование стандартной схемы, а не стремление создать собственную.
Основной принцип работы газогенераторного котла не изменяется при изменении конструкции оборудования.
За основу в процессе изготовления пиролизного котла можно брать схему конструктора Беляева, который собрал аппарат на 40 кВт.
Имеется возможность изменить конструкцию оборудования, в результате чего деталей окажется меньшее количество, однако внутренний объем останется прежним.
Параметр герметичности труб — является несущественным, так как для котлов на дровах, замерзание системы отопления — нехарактерно.
По данной причине, агрегат идеальным образом подойдет, чтобы установить его на даче, где его будут топить непостоянно.
Как вариант, в продаже имеется газогенераторная печь с водяным котлом, которая тоже является прекрасным оборудованием для отопления.
Область применения
Современный газогенераторный котел на твердом топливе, либо пиролизные модели, используются при создании отопительных систем загородных домов, на объектах производственного типа, на дачах, постройках коммерческого назначения, когда есть необходимость в отоплении помещения, находящегося далеко от газовой магистрали.
Дрова – это наиболее доступный и распространенный вид топлива.
По цене, пиролизный котел обойдется выше чем дровяной газогенераторный котел, однако сама конструкция дает возможность экономить при непосредственной эксплуатации как на самом топливе, так и при проведении технического обслуживания, тем самым показывая высокие результаты почти в любой ситуации.
Установкой котлов на твердом топливе должны заниматься настоящие профессионалы, так как есть большое количество разных нюансов и специфических особенностей отдельно взятого типа оборудования.
В том числе, будут различаться и требования со стороны техники безопасности, если это будет сделанный своими руками газогенераторный котел.
Надо также продумать, где газогенераторные котлы длительного горения будут располагаться.
Их устанавливают на специальном фундаменте из бетона, а само помещение надо изолировать от огня – к примеру, кирпичом огнеупорного типа, который при аварийной ситуации способен защищать жилье.
Отличное решение – это покупка котла, который будут оборудован встроенной защитой и датчиками от перегрева.
Надо позаботиться об устройстве аварийной схемы работы, которая используется при отключении электричества.
Все данные сложности, также как и другие, очень важны, так как при несоблюдении определенных требований может возникнуть катастрофа.
Каковы цены на газогенераторные котлы?
Высокие цены на газогенераторные котлы длительного горения обусловлены конструктивными особенностями.
Топка является разделенной на две части – загрузочную камеру – это топливный бункер, где можно наблюдать за процессом газификации и непосредственно камеру сгорания.
Топливный бункер располагается в нижней части, в него загружается твердое топливо – температура в данном отсеке может достигать 800 градусов, также здесь происходит искусственное создание дефицита кислорода.
Объем отсека будет зависеть от необходимой мощности котла.
После процессов загрузки и нагревания — начинается газовыделение. Газ попадает в верхнюю камеру, где вступает в реакцию с воздухом и затем просто сгорает.
Особенность данной конструкции будет заключаться в том, что с технической стороны, в нижней камере — должно быть обратное движение воздуха.
Это обеспечивает принудительная тяга, за которую несет ответственность дымосос, имеющий автоматическое управление и электропривод.
На сегодняшний день, можно без проблем купить газогенераторные котлы любой модели в большинстве интернет-магазинов.
